Community Center

Acknowledging the social and cultural way of life

Image
Image

It is a common sight to see community centres in use in various parts of the world. It provides universal services, supports engagement of the community through volunteering and thus encourages social interaction. This project makes us understand that community centres are responsive to community needs. It provides for a town area where people are involved in small business, farming, animal husbandry and textile embroidery practice.

Image

Fulfilling a variety of roles in many communities for a number of years, this idea comes into existence by keeping chabutra as our focal point. Chabutras were hardly meant to be just an iconic building. It was always a binding factor for the neighborhood. Its primal structure consists of two forms having separate individual identities. These identities create the appearance of either of the original forms.

3D View of the Community Center

Image

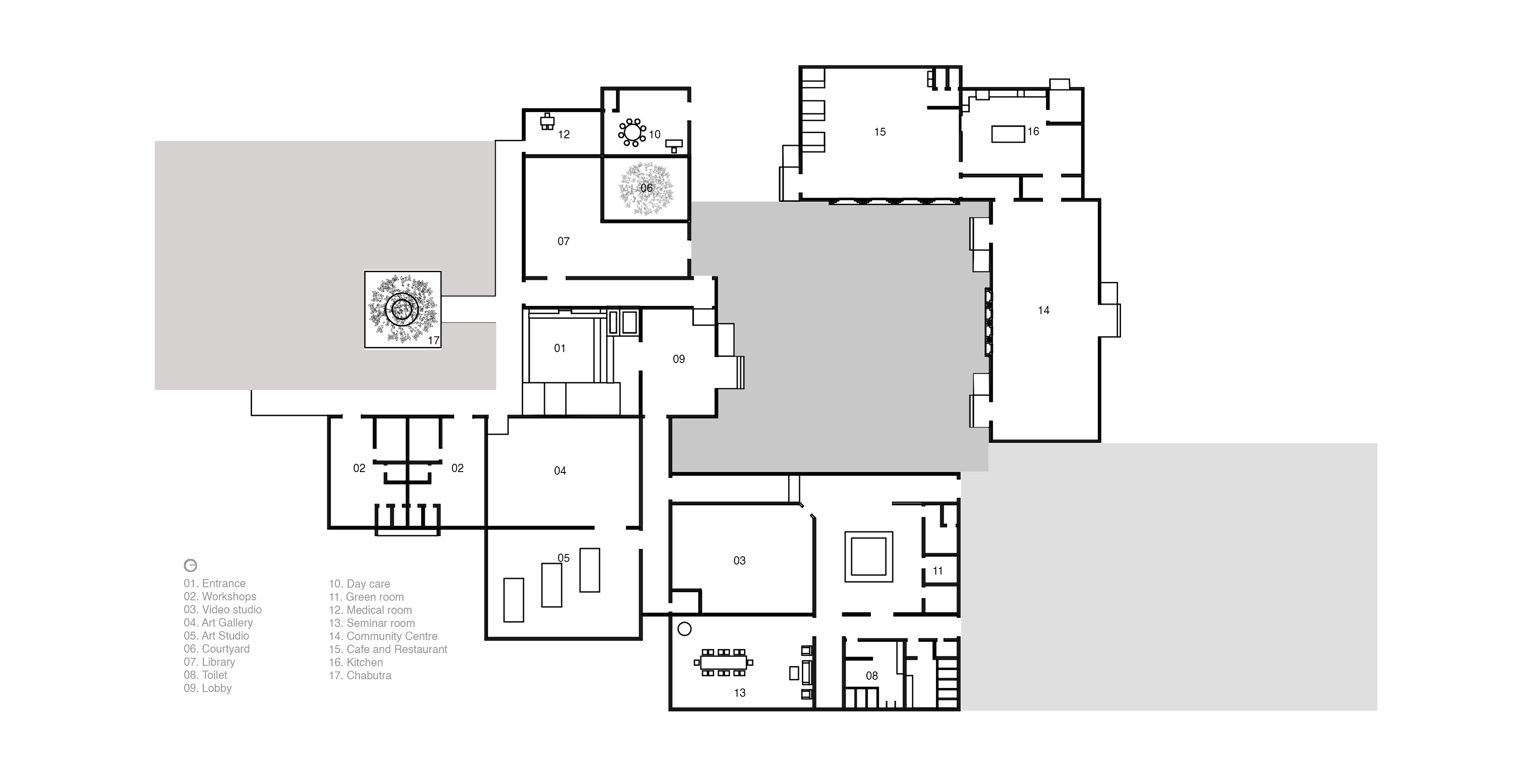
Floorplan of the Community Center

Image

Jalis cut down heat, stimulate ventilation, control light, all while aiding seclusion and being super picturesque. It truly reflects on the quality of letting us see but not be seen.

Image

West Side

Image

East Side

Image

South Side

Image

North Side

Other Renders

Image
Image
Image
Image